612 Osmosis Drive, Palm Bay, FL 32908
About Property
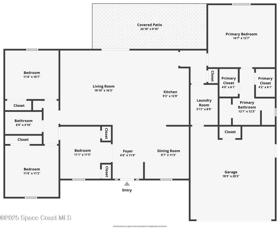
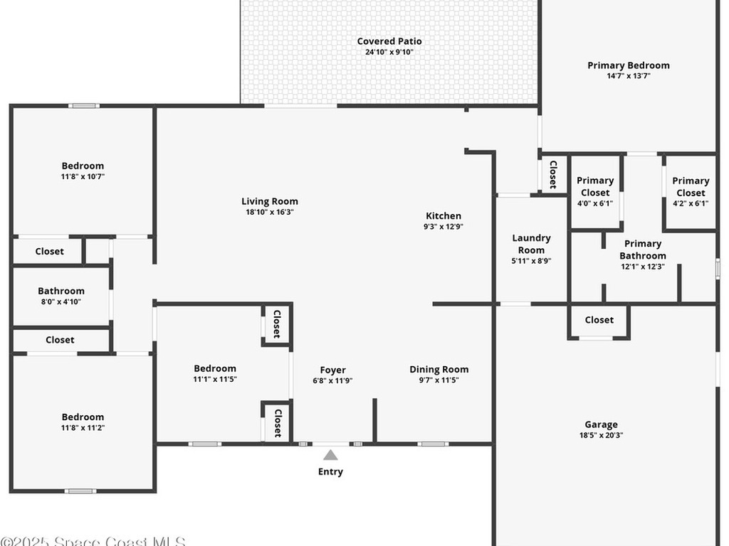
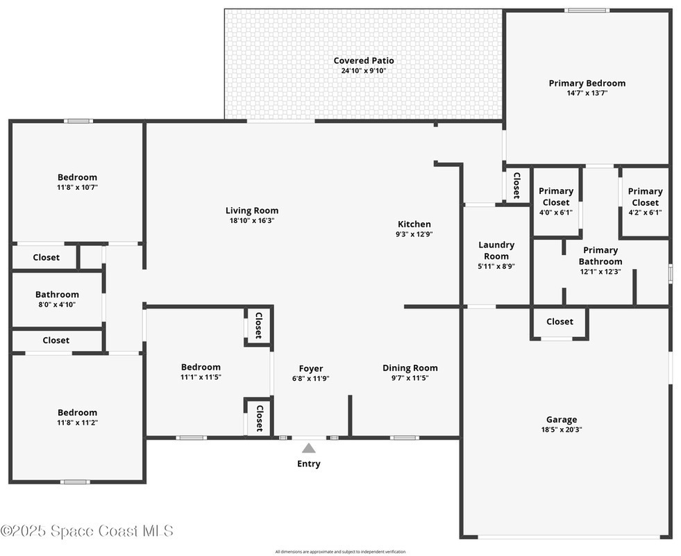
Welcome to your beautiful new HOME. This home is only 2 years old with multiple updates including a new vinyl fence, new wood shed, plantation shutters, impact rated hurricane windows, approx. 24' 10'' x 9' 10'' truss covered back porch, 9'4'' ceilings, ceiling fans, 5'' baseboards, custom soft close cabinets and drawers, Trey ceilings with crown molding, Porcelain tile in the bathrooms, laundry room, livingroom, hallways, dining room, and living room, granite countertops throughout, floor to ceiling tile in the primary shower and tub to ceiling tile in the guest bath, 2 huge primary walk-in closets approx. 4'x6', laundry sink, and much more. One of the best parts about this amazing home is its location, you are minutes from Bayside lakes shopping, Bayside High School, and Westside Elementary School. If the beach is your vibe you are approximately 30 minutes away and approximately 15 minutes to the Indian River.
Essential Property Information
- Year Built: 2023
- Price: $374,000
- Property Type: Residential
- Area: 1,802 sqft.
- Country: USA
- City: Palm Bay
- Bedrooms: 4
- Bathrooms: 2.00
Additional Property Info
- Community Fees: No
- Construction: Block and Stucco
- Contingent: Active Under Contract
- Cooling: Central Air and Electric
- Dwelling View: Other and Trees/Woods
- Equipment/Appliances: Dishwasher, Electric Oven, Electric Range, Ice Maker, Microwave and Refrigerator
- Exterior Features: Impact Windows and Other
- Floor: Carpet and Tile
- Furnished: Negotiable
- Heat: Central
- Interior Features: Ceiling Fan(s), Entrance Foyer, Open Floorplan, Other, Pantry, Primary Bathroom - Shower No Tub, Split Bedrooms and Walk-In Closet(s)
- List Price/SqFt: $207.55 / sqft
- Listing ID: 1062644
- Listing Status: Active Under Contract
- Lot Description: Cleared and Few Trees
- Lot SqFt: 10,019 sqft
- Parking: Attached and Garage
- Pet Restrictions: Yes
- Pets: Yes
- Pool: No
- Possession: Close Of Escrow
- Private Pool: No
- Property Type: Residential
- Rental Restrictions: No Minimum
- Residential Sub-Type: Single Family Residence
- Road Surface: Asphalt
- Roof: Shingle
- Rooms: Bathroom 1, Bathroom 2, Bathroom 3, Bedroom 1, Bedroom 4, Dining Room, Kitchen and Living Room
- Security/Safety: Smoke Detector(s)
- Showing: Audio Surveillance,Lockbox,Showing Service
- Sold Terms Code: Cash,Conventional,FHA,VA Loan
- SqFt - Living: 1,802 sqft
- State/Province: FL
- Status: Active Under Contract
- Status Change Date: Monday, March 2nd, 2026
- Street Name: Osmosis
- Street Number: 612
- Street Suffix: Drive
- Style: Ranch
- Subdivision: Port Malabar Unit 31
- Suffix Dir: SW
- Tax Year: 2025
- Taxes: $5,085.10
- Total Garage Spaces: 2
- Utilities: Cable Available, Electricity Connected and Water Connected
- Virtual Tour: Click Here
- Waterfront: No
- Year Built: 2023
- Zip Code: 32908
Property Details
1802.00 Square Feet
-

4 Bedrooms
-

2.00 Bath
Interested in this Listing?
Contact Us Today
Properties
Search Listings
Use the link to search for more listings near you!