300 Pinto Lane, Palm Bay, FL 32909
About Property
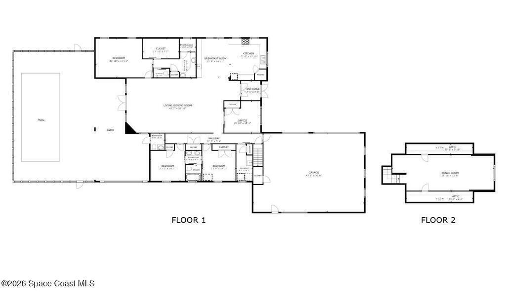
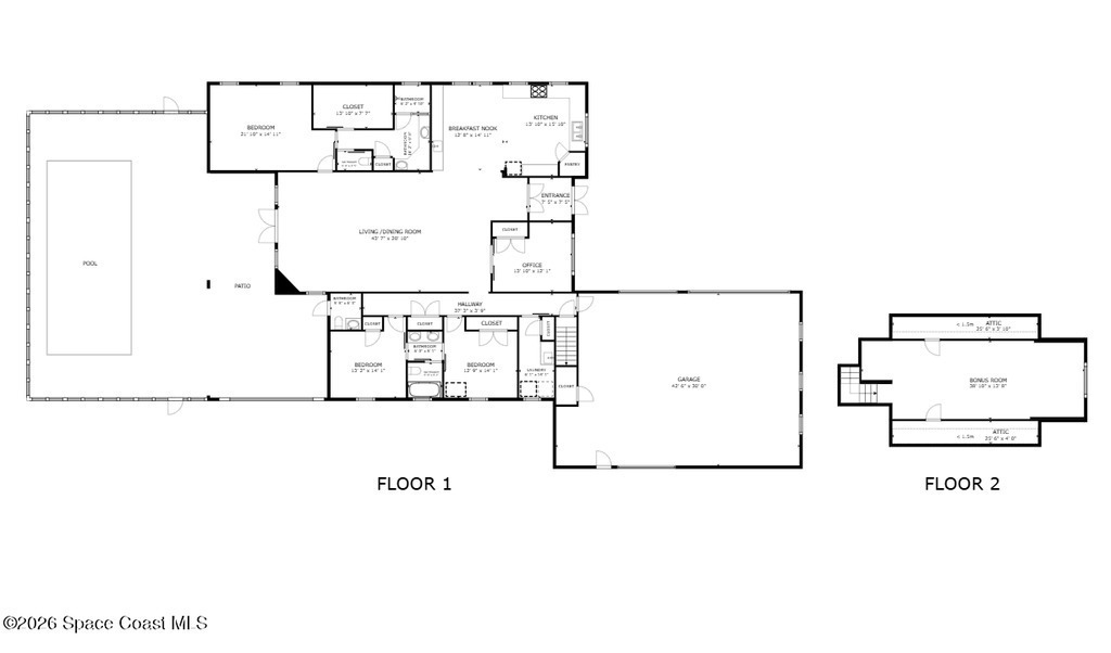
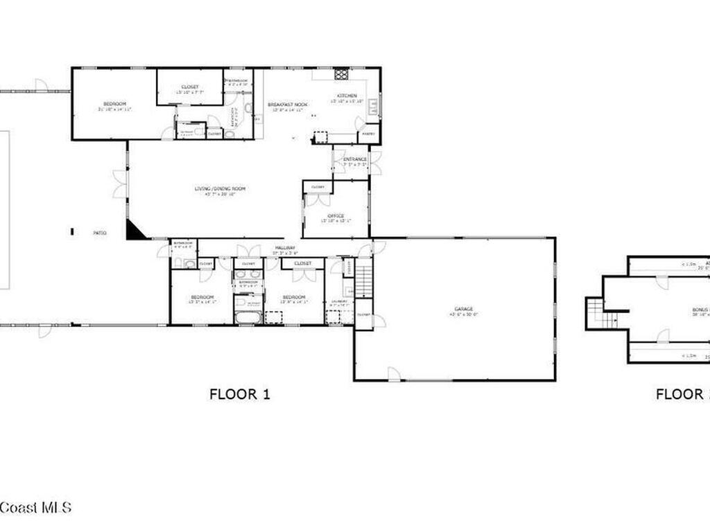
STUNNING PERFECTION best describes this GORGEOUS HOME in Deer Run, an Exclusive Equestrian Community. Experience the perfect blend of luxury, privacy, and convenience with this meticulously crafted, custom-built home. Set on 2.68 acres at the end of a tranquil cul-de-sac, this 3-Bed, 3-Bath + Office offers unparalleled privacy. Minutes from I-95 and the new Publix shopping center, this home delivers the best of both worlds-seclusion and accessibility. Spanning 3529 sf, the open concept design is modern luxury. Elegant quartz countertops and backsplashes complement the custom herringbone tile flooring, while the bedrooms and the bonus room feature rich white oak look LVP flooring. The home boasts LED lighting and modern neutral designs throughout. 12-foot ceilings make for an expansive Great Room and the electric fireplace adds ambiance and warmth. This energy-efficient home features a Metal Roof, impact windows and doors and owned 22KW solar system for $27 electric bills monthly!
Essential Property Information
- Year Built: 2021
- Price: $1,130,000
- Property Type: Residential
- Area: 3,529 sqft.
- Country: USA
- City: Palm Bay
- Bedrooms: 3
- Bathrooms: 3.00
Additional Property Info
- Assoc/HOA Contact: Artemis Lifestyles
- Association Fee Included: Maintenance Grounds
- Community Fees: No
- Construction: Block, Stone Veneer and Stucco
- Contingent: Active Under Contract
- Cooling: Central Air, Electric, Multi Units and Zoned
- Dwelling View: Pond and Pool
- Equipment/Appliances: Convection Oven, Dishwasher, Electric Oven, Electric Range, Electric Water Heater, Instant Hot Water, Microwave, Plumbed For Ice Maker, Refrigerator, Water Softener Owned and Wine Cooler
- Exterior Features: Impact Windows and Outdoor Shower
- Fireplace: Electric
- Floor: Carpet, Laminate and Tile
- Furnished: Unfurnished
- Heat: Central, Electric and Zoned
- Interior Features: Ceiling Fan(s), Jack and Jill Bath, Kitchen Island, Open Floorplan, Pantry, Primary Bathroom - Shower No Tub, Primary Downstairs, Split Bedrooms, Walk-In Closet(s) and Wet Bar
- List Price/SqFt: $320.20 / sqft
- Listing ID: 1065245
- Listing Status: Active Under Contract
- Lot Description: Cul-De-Sac, Dead End Street, Easement Access, Many Trees, Sprinklers In Front and Sprinklers In Rear
- Lot Dimensions: 206.72' X 585.04'
- Lot SqFt: 115,434 sqft
- Parking: Garage, Garage Door Opener and RV Access/Parking
- Pet Restrictions: Cats OK and Dogs OK
- Pets: Cats OK and Dogs OK
- Pool: Yes
- Pool Features: Electric Heat, Heated, Salt Water, Screen Enclosure and Solar Heat
- Possession: Close Of Escrow
- Private Pool: Yes
- Property Type: Residential
- Rental Restrictions: 1 Year
- Residential Sub-Type: Single Family Residence
- Road Surface: Asphalt
- Roof: Metal
- Rooms: Bedroom 1, Bedroom 2, Great Room and Kitchen
- Security/Safety: Other and Security Lights
- Showing: Appointment Only,Combination Lock Box,Showing Service
- Sold Terms Code: Cash,Conventional,FHA,VA Loan
- SqFt - Living: 3,529 sqft
- State/Province: FL
- Status: Active Under Contract
- Status Change Date: Tuesday, March 24th, 2026
- Street Name: Pinto
- Street Number: 300
- Street Suffix: Lane
- Style: Contemporary
- Subdivision: Deer Run
- Total Garage Spaces: 3
- Utilities: Electricity Connected and Sewer Not Available
- Virtual Tour: Click Here
- Waterfront: No
- Year Built: 2021
- Zip Code: 32909
- Zoning: Zoned for Horse
Property Details
3529.00 Square Feet
-

3 Bedrooms
-

3.00 Bath
Interested in this Listing?
Contact Us Today
Properties
Search Listings
Use the link to search for more listings near you!