14215 N Bayshore Drive, Madeira Beach, FL 33708
About Property
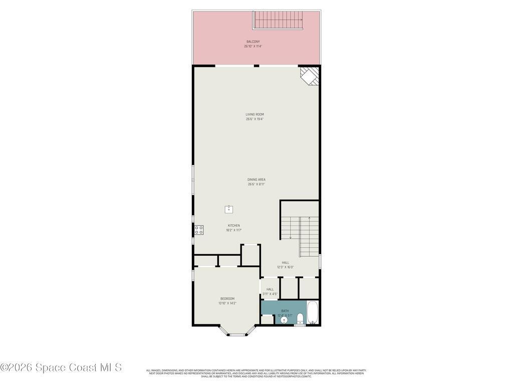
Coastal luxury living with sweeping views of the Gulf. This elevated waterfront 3 bed/3.5 bath home has TWO en-suites, an ELEVATOR, and a 3-car garage. The open-concept main level features a chef's kitchen, living and dining areas, all framed by breathtaking water views and abundant natural light. Private 3rd floor primary suite has its own balcony, two walk-in closets, and a spa-like bath with jetted tub and walk-in shower. 2nd en-suite offers Gulf views and a private balcony. Additional highlights: 2 wood-burning fireplaces, luxury vinyl flooring, and surround sound. Enjoy effortless waterfront living with a brick paver yard, mature palms, private dock, and 10,000-lb BOAT LIFT with quick Gulf access. Watch dolphins, fish from your dock, and enjoy Madeira Beach fireworks from home. Updates include a 2023 roof and water heater, HVAC, fresh interior paint, dishwasher and refrigerator(2025). Just steps to the beach, minutes to John's Pass, shopping, and dining. A boater's paradise!
Essential Property Information
- Year Built: 2001
- Price: $1,475,000
- Property Type: Residential
- Area: 3,358 sqft.
- Country: USA
- City: Madeira Beach
- Bedrooms: 3
- Bathrooms: 3.00
Additional Property Info
- Community Fees: No
- Construction: Block, Frame, Stucco and Vinyl Siding
- Cooling: Central Air, Electric, Split System and Wall/Window Unit(s)
- Dwelling View: Intracoastal and Water
- Equipment/Appliances: Dishwasher, Dryer, Electric Cooktop, Electric Oven, Electric Range, Microwave, Refrigerator and Washer
- Exterior Features: Balcony, Boat Lift, Boat Slip and Dock
- Fireplace: Wood Burning
- Floor: Tile and Vinyl
- Furnished: Unfurnished
- Heat: Electric
- Interior Features: Breakfast Bar, Built-in Features, Ceiling Fan(s), Eat-in Kitchen, Elevator, Entrance Foyer, Guest Suite, His and Hers Closets, Open Floorplan, Pantry, Primary Bathroom -Tub with Separate Shower, Split Bedrooms, Vaulted Ceiling(s), Walk-In Closet(s) and Wet Bar
- List Price/SqFt: $439.25 / sqft
- Listing ID: 1067260
- Listing Status: Active
- Lot Description: Other
- Lot Dimensions: 40.0 ft x 115.0 ft
- Lot SqFt: 4,600 sqft
- Parking: Attached and Garage
- Pet Restrictions: Yes
- Pets: Yes
- Pool: No
- Possession: Close Of Escrow
- Private Pool: No
- Property Type: Residential
- Rental Restrictions: 3 Months
- Residential Sub-Type: Single Family Residence
- Road Surface: Paved
- Roof: Shingle
- Rooms: Bedroom 2, Bedroom 3, Kitchen, Living Room, Primary Bathroom and Primary Bedroom
- Showing: Appointment Only,Showing Service
- Sold Terms Code: Cash,Conventional
- SqFt - Living: 3,358 sqft
- State/Province: FL
- Status: Active
- Status Change Date: Thursday, January 22nd, 2026
- Street Direction: N
- Street Name: Bayshore
- Street Number: 14215
- Street Suffix: Drive
- Style: Spanish
- Subdivision: None
- Suffix Dir: W
- Tax Year: 2025
- Taxes: $22,647.40
- Total Garage Spaces: 3
- Utilities: Cable Available, Electricity Connected, Sewer Connected and Water Connected
- Virtual Tour: Click Here
- Waterfront: Yes
- Waterfront Footage: 40
- Waterfront Type: Intracoastal, Navigable Water, Seawall
- Year Built: 2001
- Zip Code: 33708
Property Details
3358.00 Square Feet
-

3 Bedrooms
-

3.00 Bath
Interested in this Listing?
Contact Us Today
Properties
Search Listings
Use the link to search for more listings near you!