1224 Samar Road, Cocoa Beach, FL 32931
About Property
A polished interior paired with one of the most private waterfront lots in Cocoa Beach. This move-in ready home offers over 2,500 sq ft under air, 3,300 sq ft under roof, and clear pride of ownership throughout. Set on over a quarter acre with 140 ft of waterfront views to what feels like your own private island, complete with manatees, dolphins and golden sunsets. A full interior rebuild in 2021 took the home to the studs and returned it as a refined mid-century architectural showpiece. 45+ years remaining on superior vinyl seawall and dock. The backyard is a blank canvas ready for your vision. Located in one of Cocoa Beach's most sought-after neighborhoods with walkability to the beach, shops, and restaurants.
Essential Property Information
- Year Built: 1962
- Price: $1,645,000
- Property Type: Residential
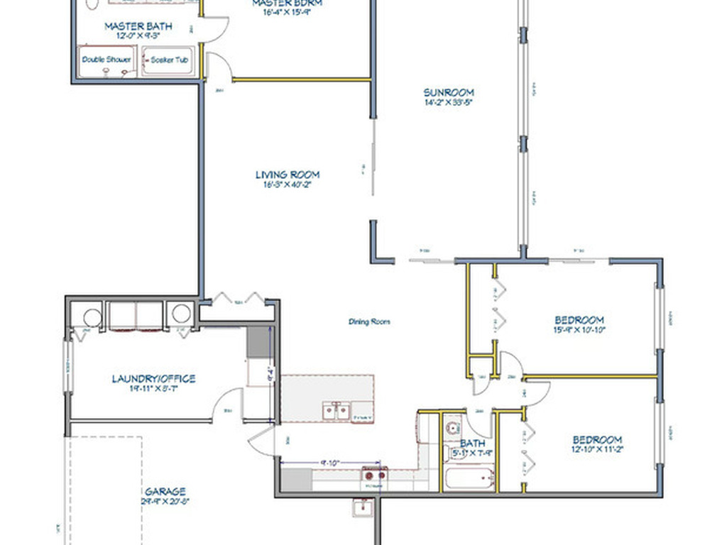
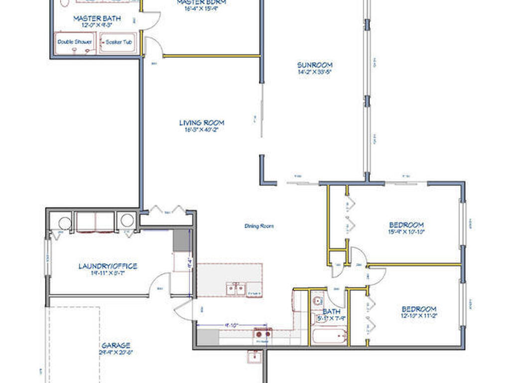
- Area: 2,503 sqft.
- Country: USA
- City: Cocoa Beach
- Bedrooms: 3
- Bathrooms: 2.00
Additional Property Info
- Community Fees: No
- Construction: Block and Stucco
- Cooling: Central Air and Ductless
- Dwelling View: Canal, Protected Preserve and Water
- Equipment/Appliances: Convection Oven, Dishwasher, Disposal, Dryer, Electric Cooktop, Electric Range, Freezer, Ice Maker, Refrigerator, Washer and Water Softener Owned
- Exterior Features: Balcony, Boat Lift, Courtyard, Dock and Impact Windows
- Floor: Tile
- Furnished: Negotiable
- Green Energy Feature: HVAC,Insulation,Windows
- Green Water Features: Low-Flow Fixtures
- Heat: Central, Electric and Heat Pump
- Interior Features: Breakfast Bar, Built-in Features, Skylight(s), Smart Thermostat, Split Bedrooms and Walk-In Closet(s)
- List Price/SqFt: $657.21 / sqft
- Listing ID: 1067999
- Listing Status: Pending
- Lot Description: Cul-De-Sac, Dead End Street, Few Trees and Other
- Lot SqFt: 11,326 sqft
- Parking: Garage
- Pet Restrictions: Yes
- Pets: Yes
- Pool: No
- Possession: Close Of Escrow
- Private Pool: No
- Property Type: Residential
- Rental Restrictions: 1 Week,Other
- Residential Sub-Type: Single Family Residence
- Road Surface: Asphalt
- Roof: Metal
- Rooms: Bathroom 1, Florida Room, Living Room, Primary Bathroom and Primary Bedroom
- Security/Safety: Smoke Detector(s)
- Showing: Appointment Only,Call Listing Agent
- Sold Terms Code: Cash,Conventional
- SqFt - Living: 2,503 sqft
- State/Province: FL
- Status: Pending
- Status Change Date: Sunday, March 1st, 2026
- Street Name: Samar
- Street Number: 1224
- Street Suffix: Road
- Style: Contemporary,Mid-Century Modern
- Subdivision: Cocoa Isles 4th Addn
- Tax Year: 2025
- Taxes: $12,556.20
- Total Garage Spaces: 2
- Under Contract Date: Sunday, March 1st, 2026
- Utilities: Cable Connected, Electricity Connected, Sewer Connected and Water Connected
- Waterfront: Yes
- Waterfront Footage: 140
- Waterfront Type: Canal Front, Navigable Water, River Access
- Year Built: 1962
- Zip Code: 32931
Property Details
2503.00 Square Feet
-

3 Bedrooms
-

2.00 Bath
Interested in this Listing?
Contact Us Today
Properties
Search Listings
Use the link to search for more listings near you!