236 W Lake Ina Drive, Winter Haven, FL 33881
About Property
Live the lake life you've been dreaming of in this beautifully maintained 3-bedroom, 2-bath home in Winter Haven! Perfectly positioned for those who love being on the water, this property offers lake access with use of two community docks ideal for boating, fishing, or catching stunning Florida sunsets. Step inside to find a bright, comfortable layout enhanced by new windows that fill the home with natural light. Major updates have already been taken care of, including a newer roof, HVAC system, water heater, new garage door giving buyers peace of mind and true move-in-ready convenience. The easy access to the docks makes it simple to embrace an active, outdoor lifestyle without the high price of direct waterfront. Located just minutes from LEGOLAND Florida Resort, shopping, dining, and entertainment, this home offers the perfect balance of adventure and convenience. Whether you're a boating enthusiast, weekend adventurer, or simply someone who loves being near the water, this property
Essential Property Information
- Year Built: 1979
- Price: $430,000
- Property Type: Residential
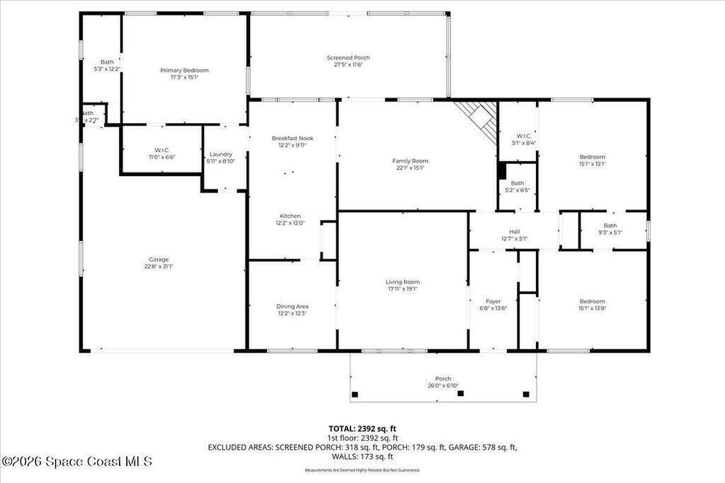
- Area: 2,576 sqft.
- Country: USA
- City: Winter Haven
- Bedrooms: 3
- Bathrooms: 4.00
Additional Property Info
- Community Fees: No
- Construction: Block and Stucco
- Cooling: Central Air and Multi Units
- Dwelling View: Lake
- Equipment/Appliances: Dishwasher, Electric Oven, Electric Range, Microwave and Refrigerator
- Fireplace: Wood Burning
- Floor: Carpet, Tile and Vinyl
- Furnished: Negotiable
- Heat: Central
- Interior Features: Breakfast Nook, Entrance Foyer, Pantry, Split Bedrooms and Walk-In Closet(s)
- List Price/SqFt: $166.93 / sqft
- Listing ID: 1073645
- Listing Status: Active
- Lot Description: Other
- Lot Dimensions: 118.0 ft x 200.0 ft
- Lot SqFt: 29,203 sqft
- Parking: Garage
- Pool: No
- Possession: Close Of Escrow
- Private Pool: No
- Property Type: Residential
- Residential Sub-Type: Single Family Residence
- Roof: Shingle
- Showing: 24 Hour Notice,Call Listing Agent,Showing Service
- Sold Terms Code: Cash,Conventional,FHA,VA Loan
- SqFt - Living: 2,576 sqft
- State/Province: FL
- Status: Active
- Status Change Date: Thursday, April 2nd, 2026
- Street Direction: W
- Street Name: Lake Ina
- Street Number: 236
- Street Suffix: Drive
- Subdivision: None
- Tax Year: 2025
- Taxes: $4,971.12
- Total Garage Spaces: 2
- Utilities: Other
- Waterfront: Yes
- Waterfront Type: Lake Front
- Year Built: 1979
- Zip Code: 33881
Property Details
2576.00 Square Feet
-

3 Bedrooms
-

4.00 Bath
Interested in this Listing?
Contact Us Today
Properties
Search Listings
Use the link to search for more listings near you!